17 Febbraio 2017
Zibido, Febbraio 2017
Ecco il pozzo eretto.
Nel resto del mondo si parla
di fossil-fuel free energy
di strade elettriche
di 100% rinnovabili
di treni a sole e a vento
Nelle campagne milanesi trivelliamo.
Evviva l'Italia
------
La Apennine Energy Srl ha sede a San Donato Milanese ed e' una sussidiaria della Sound Oil
con sede a Londra
----
In Italia ci piace scommettere sul futuro in modo coraggioso. Ma mica con le rinnovabili, o con l'innovazione, o con il sapere, o con l'high tech. No, con le trivelle.
E infatti in questi giorni, tutta entusiasta la ditta Sound Oil con sede a Londra ha annuciato di avere avuto l'approvazione di trivellare in Lombardia da parte del governo regionale e che adesso ci si aspetta di avere il permesso finale dal Ministero dello Sviluppo Economico di Roma. Il pozzo e' esplorativo e si chiamera' Moirago 1dir.
Si preparano dunque. Affilano le trivelle, comprano lotti industriali e iniziano il trasporto di materiale. Il capo della ditta in questione, James Parsons ricorda ai suoi investitori
"Badile remains the largest and most strategic asset in our portfolio with an independently assessed best case estimate of 178 Bscf equivalent. The gas produced from Badile (following a successful exploration well and production concession award) would feed in to the energy hungry domestic market in Italy which has maintained pricing resilience against a backdrop of falling commodity prices."
Niente di nuovo sotto il sole dunque, e' mera speculazione per vedere gas ad una Italia affamata di energia, almeno secondo loro.
Ma.. quant'e' 178 Bscf? 178 billions of standard cubic feet. Beh, fanno circa 5 miliardi di metri cubi. Ovviamente la parola miliardi ci fa andare in fibrillazione, ma occorre mettere sempre tutto in prospettiva: di gas in Italia ne consumiamo circa 80 miliardi all'anno quindi questi 5 miliardi non rappresentano che bazzeccole -- circa 20 giorni di fabbisogno nazionale, ovviamente spalmati su periodi pluriannuali.
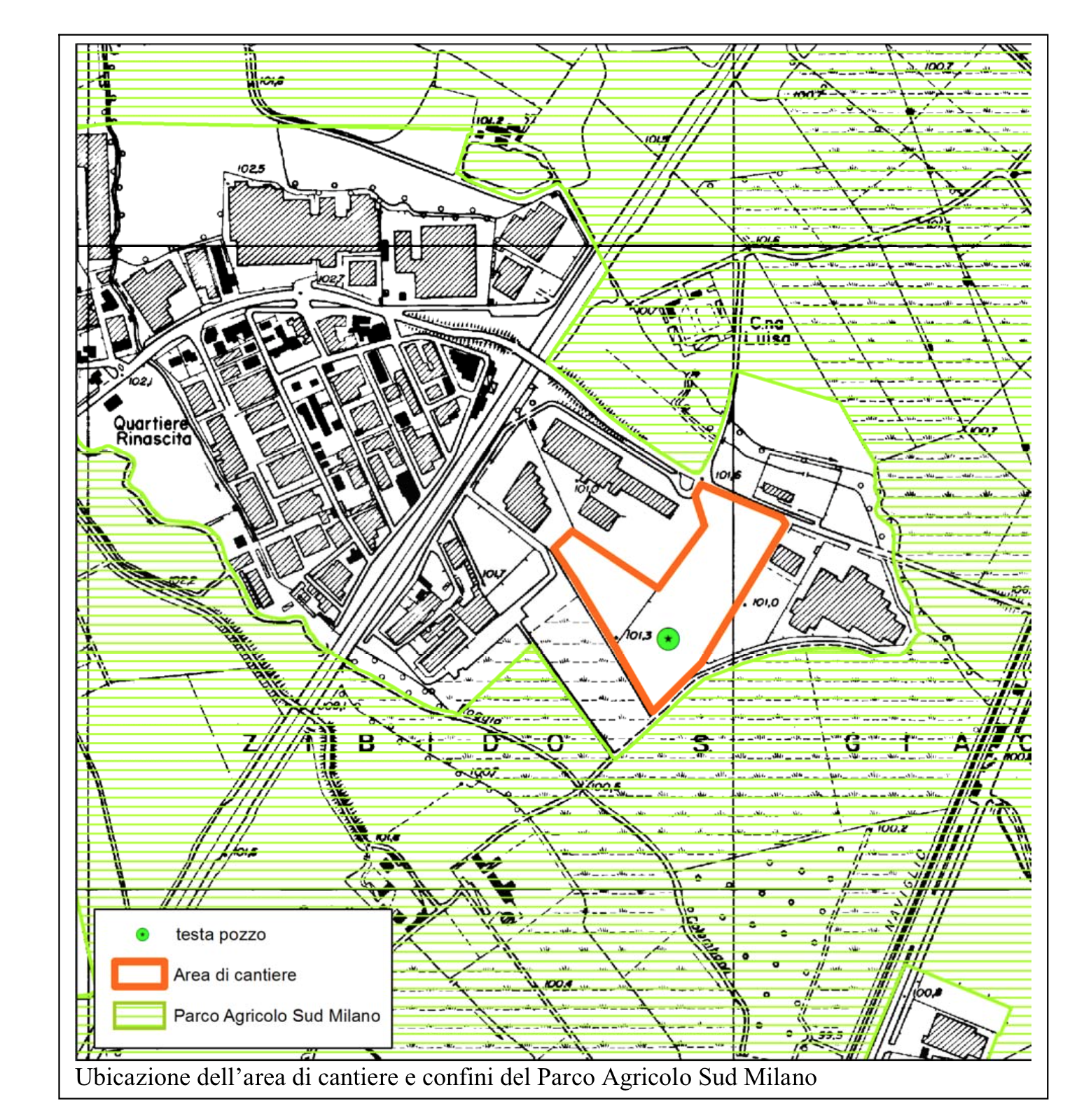
E cosa faranno per arrivare a questo gas? Beh, trivelleranno a circa 4.2km sotto la crosta terrestre e poi vireranno in orizzontale per circa 41 gradi e andranno dritti per circa 600 metri fino ad arrivare al giacimento. Neanche io oso pensare cosa ci sia in superficie lungo quei 600 metri in orizzontale, ma dal loro progetto ecco qui: c'e' un area protetta. Anzi il pozzo stesso e' circondato dal parco agricolo Sud Milano. Hanno scelto una piazzola dismessa per trivellare un pozzo in mezzo ad un parco. A soli 5 chilometri di distanza c'e' anche il sito protetto SIC 20500100 detto Oasi di Lacchiarella.
Ma nessun problema - saranno usati fanghi che non comprometteranno le falde acquifere, il Naviglio e l'autostrada faranno da barriera alla fauna, e sopratutto c'e' solo fieno, per cui che vuoi che sia. L'unica vegetazione di "interesse" e' rappresentata da alcuni filari, sebbene nei dintorni ci siano colture di riso, cerali e foraggio e di una fitta rete irrigua.
L'attivita' esplorativa durera' quattro mesi, ma ovviamente se il pozzo e' produttivo, si passera' alla fase di sfruttamento. Come coesisteranno parco e piazzola trivellante e' un mero dettaglio.
Interessante che nello studio di impatto ambientale non venga ricordato cio' che invece viene detto ai loro investitori. Infatti, nei siti aziendali della Sound Oil si ricorda che una societa' indipendente, chiamata ERC Equipoise Limited, ha studiato le possibilita' di successo del progetto con la conclusione che:
The study has also confirmed a 22% geological chance of success for the prospect.
Lo studio ha confermato che le possibilita' geologiche di successo sono del 22%.
Questa frase non sono riuscita a trovarla negli studi di impatto ambientale. Perche' non l'hanno detto anche al governo lombardo? Ai residenti di Zibido San Giacomo che saranno i piu' vicini al pozzo? Potrebbe essere che se sapevano di queste scarse possibilita' di successo, il giudizio degli enti lombardi sarebbe stato diverso? Forse la regione avrebbe deciso che non ne sarebbe valsa la pena di mettere a rischio case, parco, aria e polmoni per delle possibilita' cosi basse di tirare fuori cosi poco gas?
Non lo sapremo mai.
Ma questi sono solo freddi numeri e statistiche pessimistiche. Siamo dei temerari in Italia e andiamo avanti con coraggio verso la deriva.
Qui le immagini relative alla concessione Badile, dove dovrebbe sorgere il pozzo Moriago 1 dir, alle porte di Milano.







No comments:
Post a Comment